Перейти к основному содержанию
Меню
+375 29 6067711
заказать звонок
ГЛАВНАЯ
О НАС
УСЛУГИ
Монолитные работы
Фундамент для дома и здания
Аренда спецтехники
Буронабивные сваи
Технология CFA
Забивные сваи
НАШИ РАБОТЫ
НОВОСТИ
КОНТАКТЫ
Проект бани № 1
Вы здесь
Главная
Описание проекта
Задачи
Описание проекта
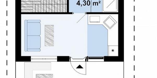
Проект современной и комфортной бани.
ГЛАВНАЯ
О НАС
УСЛУГИ
Монолитные работы
Фундамент для дома и здания
Аренда спецтехники
Буронабивные сваи
Технология CFA
Забивные сваи
НАШИ РАБОТЫ
НОВОСТИ
КОНТАКТЫ