Описание проекта
Версия проекта с альтернативной планировкой мансардного этажа.
- Жилая / Общая площадь 158,0 / 238,7 м?
- Гараж 39,8 м?
- Высота 8,34 m
- Угол наклона кровли 37°
- Площадь крыши 239,5 m?
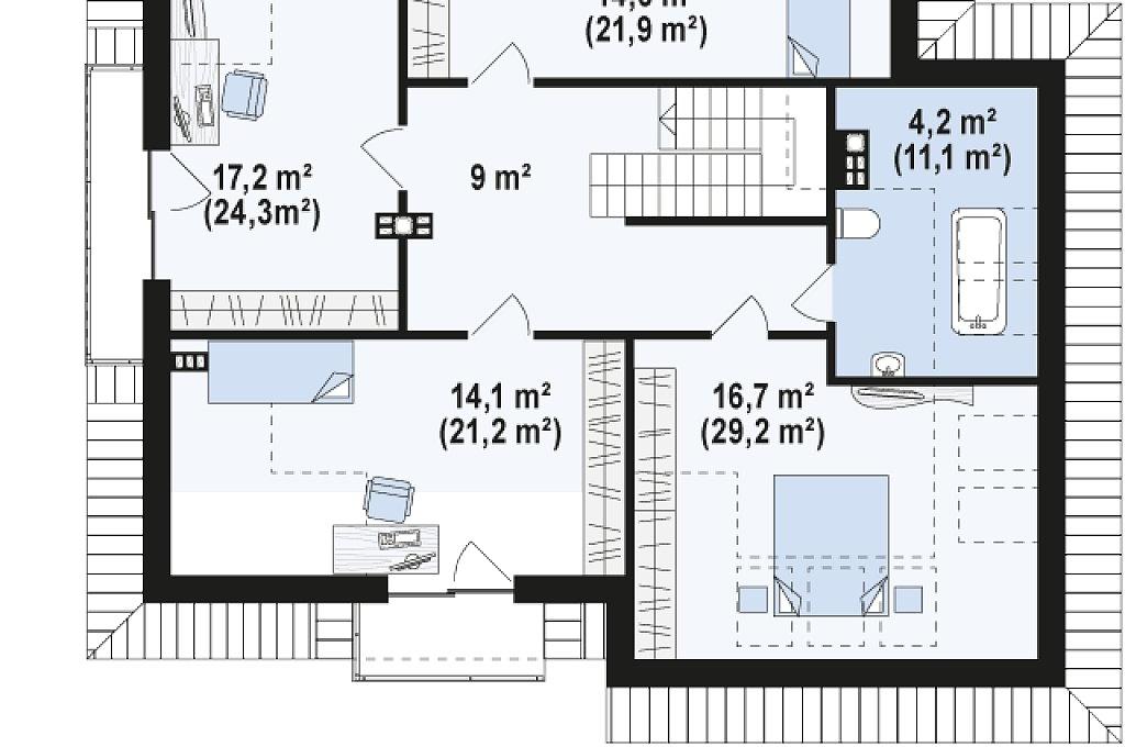
Разработка представляет версию проекта с альтернативной планировкой мансардного этажа. Именно мансарда является главным украшением экстерьера. В данном проекте вместо двух ванных комнат на втором уровне спроектирована одна общая. Кроме того, в новой разработке увеличено количество спален до четырёх, при этом у трёх комнат предусмотрены собственные балконы. Также несколько возросла площадь общего холла (теперь он занимает 9 кв.м). На первом этаже планировка оставлена прежней — здесь спроектирована дневная зона открытого типа. В дальней части выделено место для дополнительной комнаты.
